Ficha
Piso en venta en Calle Tetuán 63, Puebla do Caramiñal
A Pobra Do Caramiñal - REF. 7080
150 m2 4 2 3
venta: 95.000 €
Descripción

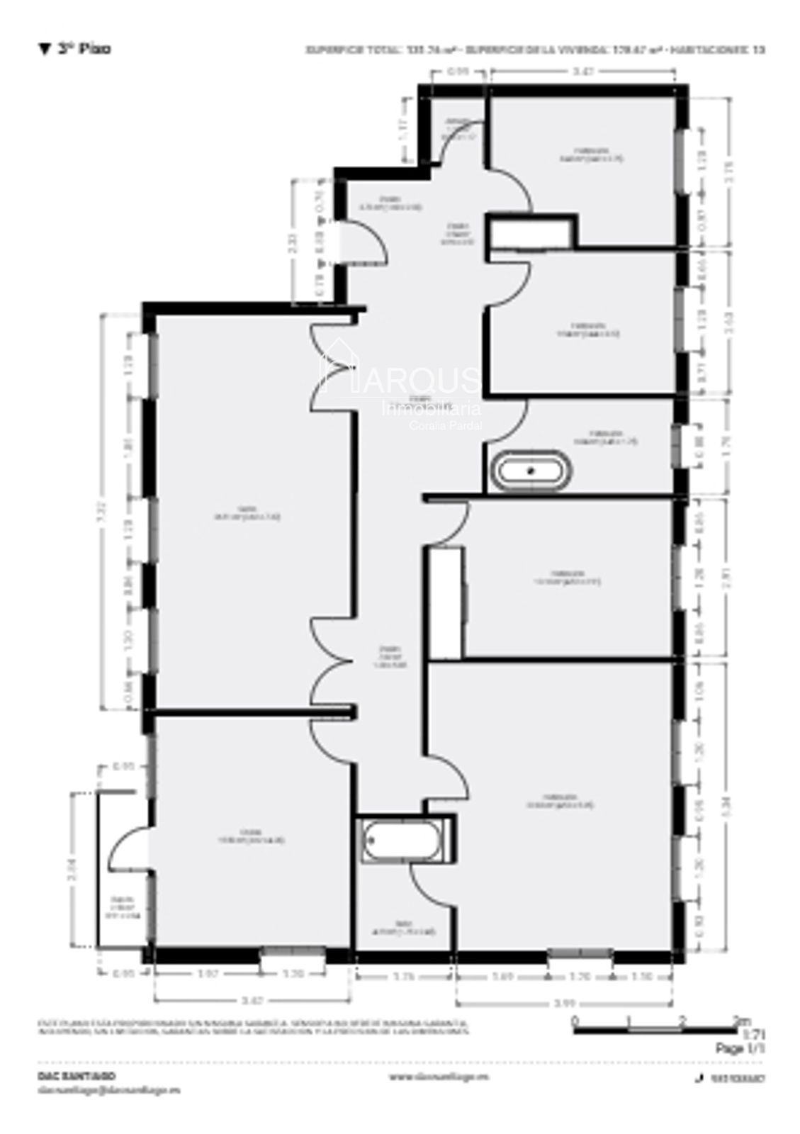
Ubicado en la Calle Tetuán de Puebla del Caramiñal, este generoso piso de 150 metros cuadrados construidos (131 m² útiles) se presenta como una oportunidad excelente para quienes buscan una vivienda con amplitud y potencial en un entorno marítimo inigualable. Situada en la tercera planta de un edificio de 1970, la propiedad destaca por su luminosidad y, sobre todo, por sus privilegiadas vistas despejadas a la ría de Arousa, encontrándose a escasos metros tanto del puerto deportivo como de la playa a la que hay vistas desde la vivienda.

La vivienda cuenta con una distribución clásica y muy espaciosa que incluye un salón-comedor de grandes dimensiones, cuatro dormitorios amplios, 2 baños, una cocina independiente con zona de tendedero y dos cuartos de baño. Aunque el piso se conserva en su estado original, ofreciendo el encanto de las construcciones de la época, su gran superficie permite una reforma integral para modernizar los espacios y adaptarlos a las necesidades actuales. Además, el precio incluye un práctico trastero situado en la planta bajo-cubierta del edificio.

Su ubicación es estratégica dentro de A Pobra do Caramiñal, permitiendo disfrutar de la tranquilidad de la costa sin renunciar a la cercanía de todos los servicios esenciales, comercio local y hostelería. Aunque el edificio no dispone de ascensor ni plaza de garaje propia, la zona ofrece facilidades de aparcamiento justo al lado del portal. Este piso es el lienzo perfecto para crear un hogar familiar espacioso o una segunda residencia de ensueño frente al mar en una de las villas más pintorescas de las Rías Baixas.



El precio de venta no incluye impuestos ni gastos de notaría y registro. Estos importes dependen de la naturaleza de la operación, de la comunidad autónoma y de las circunstancias personales y patrimoniales del comprador; por ello no pueden fijarse de forma exacta en el presente anuncio. Solicite una estimación personalizada. Más información en: https://www.atriga.gal/es_ES/preguntas-frecuentes/imposto-sobre-transmisions-patrimoniais-e-actos-xuridicos-documentados

Características
Precio Venta 95.000 €
Precio/m² 633 €/m²
Año de construcción 1970
Construidos 150 m2
Útiles 131 m2
Dormitorios 4
Baños 2
Trastero
Altura/Planta 3
2ª línea de playa
Calificación Energética (G) VER
Escalas de eficiencia


Eficiencia Emisiones: 69,00
Eficiencia Consumo: 264,00
264
69

Contacta con tu asesor
Coralia Pardal
Contáctanos

Si deseas más información sobre esta propiedad, por favor, rellena el formulario.

 Sí, he leído y/o acepto las Condiciones de uso y la Política de privacidad
Inmuebles similares:
 
95.000 €
Ref. 1023  150 m2  4  2
Piso en venta en A Pobra Do Caramiñal, con 150 m2 y 4 habitaciones y 2 baños.
 
99.600 €
Ref. 1041  50 m2  1  1
Piso en venta en A Pobra Do Caramiñal, con 50 m2, 1 habitaciones y 1 baños, Garaje y Ascensor.